Class of 2020 • 

Anna McDermott


Anna McDermott
Institution
UCD School of Architecture

Medium


Graduation Year
Class of 2020


Share
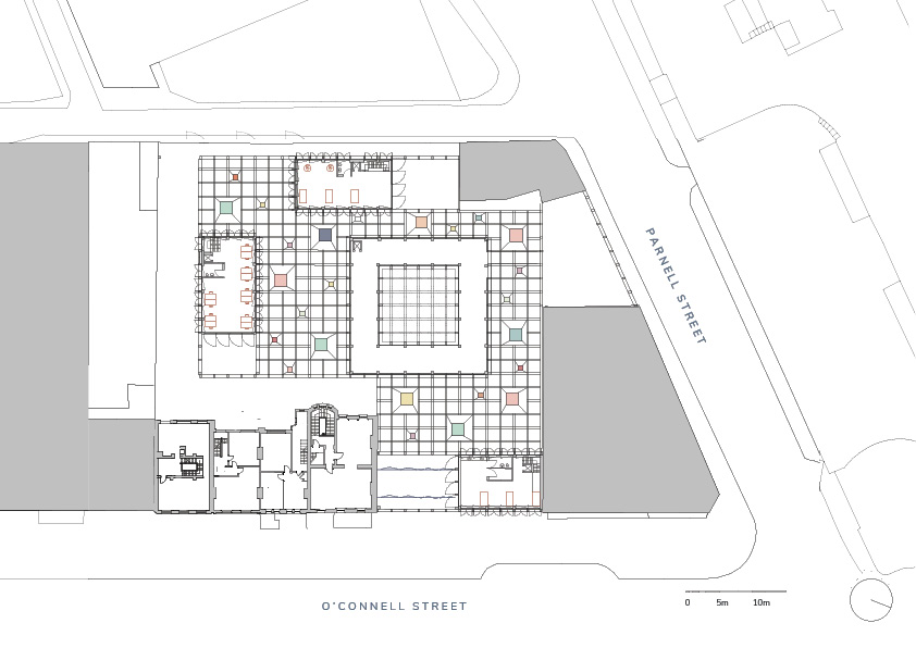
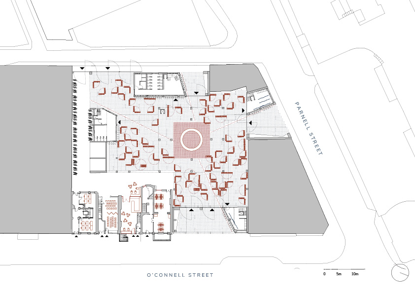
This is a collection of drawings and images made throughout my thesis project 'Urban Fabrics'. It aims to explore the making of an inclusive building in a changing city under the title 'ReCode; RePurpose; ReClaim'. The project provides new spaces between a colourful, patterned floor and roof for the repair, making and exchange of fabrics as an alternative to the fast-fashion shopping centre.
Shopping cart0
There are no products in the cart!
Continue shopping
0